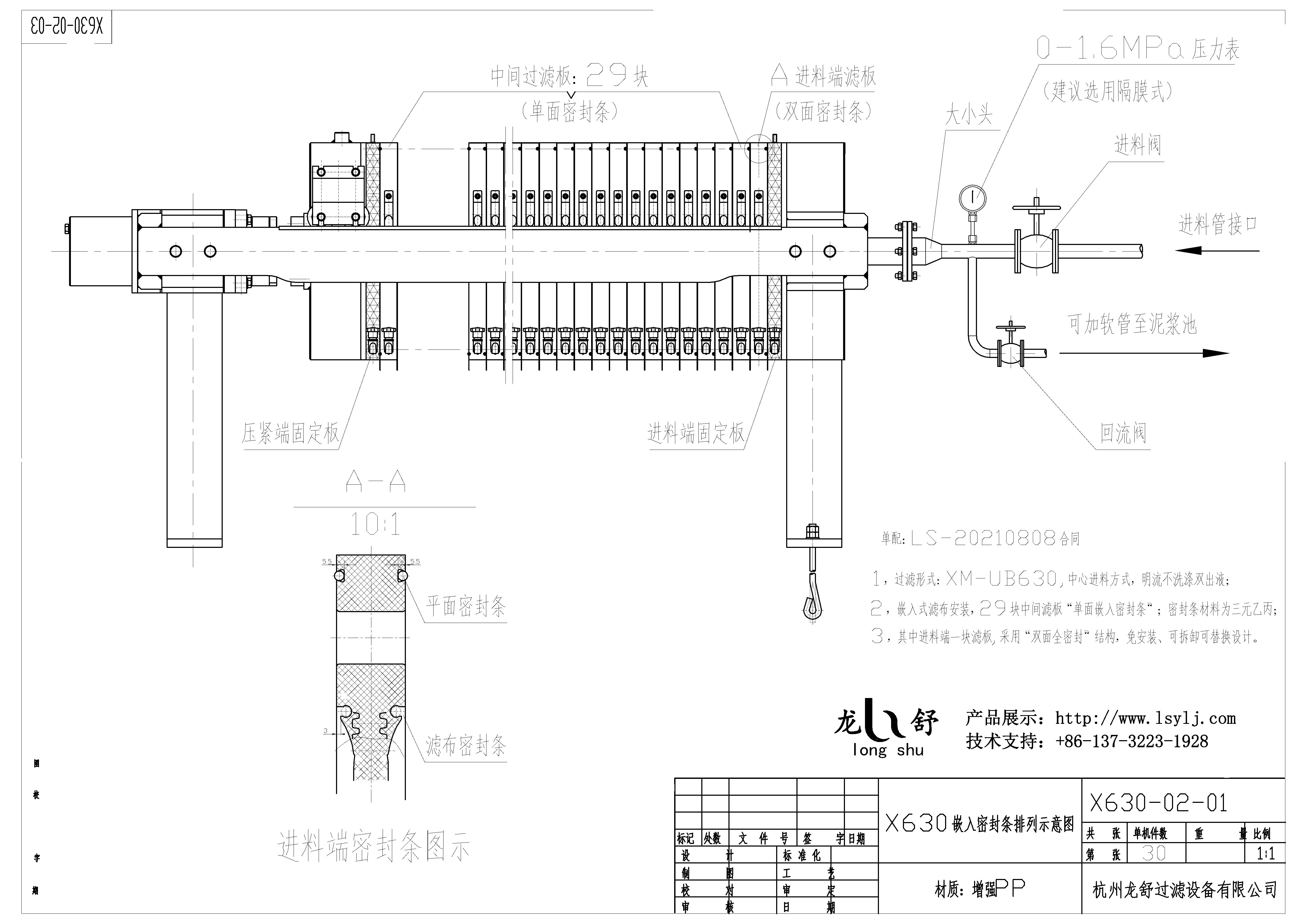
围绕XMY/630-UB型压滤机滤布外露式结构的渗液问题及解决方案展开解说,拟题突出核心问题与解决措施,让内容逻辑更清晰、细节更易懂。XMY/630-UB型压滤机渗液问题解析及嵌入式滤板改造方案本文将针对客户在用的XMY/630-UB型压滤机,从设备基础参数、滤布外露式结构的渗液原因、渗液现象的合理性与适用场景,以及具体解决措施等方面展开详细解说,帮助全面理解设备渗液问题的本质及改造逻辑。
一、设备基础参数及核心结构说明客户当前使用的XMY/630-UB型压滤机,属于液压压紧、自动保压的厢式压滤机,其核心进料与过滤结构具备以下特点:采用中心进料方式,滤液排放为明流不可洗模式,同时配备双出液滤室结构。从结构分类来看,原机采用的是行业内多数压滤机默认的“滤布外露式结构”,这一结构的核心优势在于明流设计简洁直观——操作人员可直接观察滤液的澄清度,便于实时掌握过滤工况,及时发现滤液异常等问题,在基础过滤场景中具备操作便捷性的优势。
二、滤布外露式结构渗液问题解析(一)渗液现象的具体表现
滤布外露式结构虽操作便捷,但存在难以避免的短板:无法实现完全的滴水不漏。在设备压紧过滤过程中,滤布与滤板的贴合面之间会存在微小的毛细孔,这些毛细孔会导致部分滤液渗出;尤其在过滤初始阶段,渗液现象更为明显,可能出现周边渗液甚至“滴滴答答”的情况。这一阶段渗液加剧的核心原因有两点:一是初始过滤时物料浓度较低、流量较大,滤液的渗透力更强;二是新滤布的毛细孔相对稀疏,对滤液的阻隔效果较弱,进一步放大了渗液现象。 (二)渗液现象的合理性与行业标准 需要明确的是,普通滤布外露式压滤机的初始渗液并非设备故障,而是该结构的正常特性。从行业标准来看,板框压滤机在过滤过程中允许出现渗漏现象,仅禁止发生喷浆(大量滤液猛烈喷出)的情况。同时,这种渗液现象具有阶段性:随着过滤的推进,滤饼会在滤室内逐渐堆积,最终填满整个滤室。滤饼本身会形成一层“阻隔层”,减少滤液与滤布、滤板贴合面的接触,此时渗液现象会逐渐减轻,甚至完全消失。 (三)滤布外露式结构的适用场景基于上述渗液特性,普通滤布外露式压滤机并非适用于所有工况,其更适合对滤液回收要求不高的场景。例如,在部分工业生产中,滤液无需重复利用,少量渗液不会对生产环境、成本控制造成影响,此时采用该类型压滤机可兼顾操作便捷性与成本效益;但如果工况对滤液回收效率、生产环境整洁度要求较高,“滴滴答答”的渗液问题就需要针对性解决。
三、渗液问题的解决措施及改造方案针对滤布外露式结构的渗液问题,行业内主要有两种解决思路,结合客户需求,最终确定了嵌入式滤板改造的方案,具体如下:
(一)两种核心解决思路对比 第一种思路是加装翻板集液装置:通过在压滤机下方加装翻板结构,将渗漏的滤液收集起来,再通过汇总管道排出。该方案的优势是改造难度低、成本相对较低,可快速解决渗液的排放问题,但并未从根源上消除渗液,仅实现了“收集再利用”;第二种思路是更换嵌入式带密封条的滤板:通过改变滤板的结构,增加密封条,从根源上减少滤布与滤板之间的毛细孔,避免渗液现象。该方案可彻底解决渗液问题,更适合对生产环境、滤液回收要求较高的工况,这也是客户最终选择的方案。 (二)嵌入式滤板改造的具体方案本次改造针对XMY20/630-UB型压滤机的滤板进行针对性替换,核心改造细节如下:
1. 滤板替换数量:将原机的29块中间过滤板全部更换为嵌入式滤板,该类型滤板仅需单面配备密封条即可实现密封效果;
2. 机动滤板补充:额外配置1块机动的双面密封条滤板,用于作为头板或尾板;
3. 改造优势:该方案无需拆卸原机的头尾板,可直接将新滤板与原头尾板匹配安装,大幅降低了改造难度,减少了设备停机时间,同时保证了改造后的密封效果,从根源上解决了“滴滴答答”的渗液问题。
四、改造方案的核心价值总结本次嵌入式滤板改造方案,既兼顾了客户对消除渗液、提升生产环境整洁度的核心需求,又通过“不拆卸原头尾板”的设计,降低了改造对生产的影响。改造后,压滤机可适用于对滤液回收、环境要求更高的工况,同时保留了原机液压压紧、自动保压、中心进料等核心优势,实现了“结构优化+工况适配”的双重目标。这份技术解说文档涵盖了设备结构、渗液原理、解决方案等关键内容。
更换工作首先细致地拆除了原有的中间过滤板,随后,开始安装嵌入式带密封条的滤板。这些新滤板设计精巧,密封条紧密贴合,有效防止了渗漏问题的发生。在安装过程中,技术人员还特别注意调整滤板之间的间隙,确保密封性能达到理想状态。所有滤板顺利更换完毕。为了验证效果,需进行了多次压力测试,结果显示,渗漏现象彻底消失,“滴滴答答”的现象也没有了。

此外,我们还为客户提供了详尽的操作指南和后续维护建议,确保他们在使用过程中能够轻松应对各种情况,延长设备的使用寿命。此次改造不仅解决了客户的燃眉之急,也进一步巩固了我们的合作关系,为未来更多的合作奠定了坚实的基础。在技术创新与服务升级的路上,我们将不断探索与追求。
如您在压滤机、过滤工程选型中需要更多的过滤与分离方面的咨询,欢迎来电(13732231928周经理)咨询,我们可根据您现场过滤工况和您共同做好设备方案设计和科学选型。




