一,机架安装
1,出售时机器裸露部分使用前应涂上防锈油脂(活塞杆行程部分)。
2,输送机钢架安装在混凝土基础上。机器安装在承重钢架上,安装时以两横梁为基础校正水平。然后灌浇混凝土。
3,地脚螺栓应位于机架落地安装孔中央,螺栓端部高出联结面60mm左右。
4,机器周围要留有余地.考虑安装、拆卸管道以及出滤饼和检修等的方便,特大型压滤机还应考虑滤板破损后的更换设施。

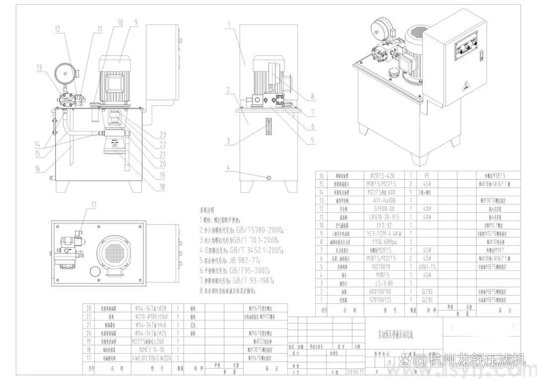
二,液压站的安装
1, 液压站安装在承重钢架上;液压站放置在油缸后端,根据油管连接长度调整至合适位置,以确保油管连接。
★2, 油管的连接:主油管有2根;靠近阀体位置偏下点的油管为进油管;和油缸后端的进油接头连接;靠近阀体位置偏上点的油管为回油管;和油缸前端的回油接头连接;油马达的2根小油管;连接位置可以随便更换。
3,液压用油推荐粘度为30cst (50℃)左右,相当普通液压油30#(新牌号:N46# 46cst,40℃)。粘度指数不低于95,闪点(开口)不低于170℃,凝点不高于-15℃。如环境温度偏低,用户可选用相似粘度低凝点的液压油。加油至液面线上限。(警告:未加液压油前电机严禁启动)
4,电接点压力表的上下限调整至12MPa—16MPa;松开溢流阀固定螺母;转动手轮可以调节主油缸压力;转动调速阀,可以调节自动拉板的速度;
注 意:电接点的压力范围和调压螺栓的压力均在出厂前已经调好,一般不要去随意调
(压力表的上下限可能在运输过程中因震动而造成上下限指针不准;使用前需手动调整一下)

三,电器安装
★1, 按线路容量选好橡套软电缆,外套金属软管,主动力电线分别接入U1、V1、W1和 N。试运转;观察油泵电机(风叶从上端往下看)应顺时针旋转。
注 意:油泵电机(风叶从上端往下看)一定要顺时针旋转;否则,压力不工作。
2, 进料泵的驱动主电源线,分别接入U2、V2、W2;试运行,观察泵电机的运转方向(顺时针),进料前进行引水。
注:电机方向和电滚筒方向可以根据需要采取互换接线端子的位置,进行调整。
3,为防止滤板的永久性变形和压滤机的强度,因此不允许压紧力过高。操作者应当遵守我公司规定的具体数据。
四,操作步骤:
① 启动电源,(合上电控柜里面的空气开关)(检查压力表压力范围是否在12Mpa—16MPa之间,否则要调节到此范围)
② 按“压紧”按纽,压紧板向前推进,直至将每块滤板压紧并确保密封;当压力达到压力表上限时,液压工作自动切断;当压力低于压力表下限时,液压电机和油泵自动启动。将压力保持在上下限之间。
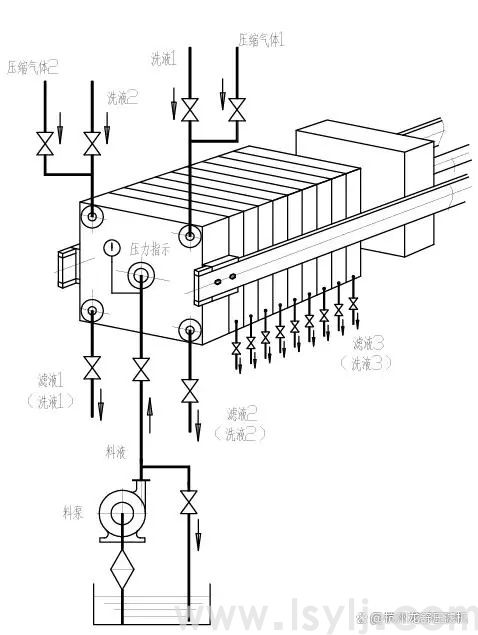
③ 在确保密封保压的时候,进行进料过滤
④ 按泵的进料按钮,开始进料,(进料端安装回流阀和压力表,无比将压力控制在0.6MPa以下)
⑤ 进料压力达到额定压榨力时,停止进料(泵的电路虽然在同个电器箱里,但是和压滤机是单独分开的,可以随时开启/关闭)
⑥ 过滤完工后,根据工艺要求进行洗涤或吹气压榨等;
注 意:要防止洗涤水溅入电机、电磁阀或电控箱内,造成电磁阀线圈烧坏,等其他电器故障,用户现场务必做好防护措施。
⑦ 按“即停”按纽;再按“放松”按纽;压紧板退回,退到一定的位置后(确保足够的卸饼空间)按“即停”按纽;停止液压工作。进行拉板卸料。
⑧ 按“拉板”按钮;PLC程序进行自动逐块拉板;皮带输送机会自动开启;
⑨ 拉板结束时,拉板小车自动恢复到原位,输送机同时停止工作,
⑩ 按“压紧”按钮,进入下一个循环。

注 意:在操作过程中,如发生紧急情况,务必要按“即停”按纽,拉板过程中发生紧急情况时,务必要按拉线暂停开关;PLC程序自动暂停;重新开启时;PLC程序又继续按原先的程序继续执行下去。

如您在压滤机、过滤工程选型中需要更多的过滤与分离方面的咨询,欢迎来电(13732231928周经理)咨询,我们可根据您现场过滤工况和您共同做好设备方案设计和科学选型。




